Nowe mieszkanie Płaszów, ul. Myśliwska 68C
Myśliwska 68C, Płaszów, Kraków, małopolskie
- 715 977 zł
- 45,03 m²
- 15 900 zł/m²
Biuro sprzedaży
Skontaktuj się
Nowe mieszkanie Płaszów, ul. Myśliwska 68C
Myśliwska 68C, Płaszów, Kraków, małopolskie
zobacz mapę
zaktualizowane:
18 marca 2024
Nowe mieszkanie Płaszów, ul. Myśliwska 68C
Inwestycja: Wiślane Klimaty
Zaktualizowane: 18 marca 2024
715 977 zł 45,03 m² 15 900 zł/m²
IV kwartał 2025
5/5
2
garaż
deweloperski
Zobacz na mapie
Termin realizacji:
IV kwartał 2025Piętro:
5/5Liczba pokoi:
2Miejsce postojowe:
garażStan mieszkania:
deweloperskiSzczegóły ogłoszenia
- Typ oferty: nowe mieszkanie na sprzedaż
- Cena: 715 977 zł (15 900 zł/m²)
- Termin realizacji: IV kwartał 2025
- Status oferty: dostępne
- Rynek: pierwotny (oferta dewelopera)
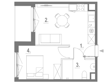
- Charakterystyka mieszkania: 45,03 m², 2 pokoje, 1 łazienka; stan: deweloperski
- Budynek: blok mieszkalny
- winda
- Rozkład mieszkania: piętro 5/5, jednopoziomowe
- Powierzchnia dodatkowa: balkon (4,3 m²)
- Kuchnia: oddzielna kuchnia
- Miejsce/a postojowe: w garażu wielostanowiskowym; garaż w bryle budynku, winda z poziomu garażu
naziemne
- Źródło: oferta dewelopera: Przedsiębiorstwo Budowlane START Sp. j., zaktualizowane: 18.03.2024
- sygnatura ogłoszenia: 68c/69
Lokalizacja
- Inwestycja: Wiślane Klimaty
- Adres: Myśliwska 68C, Płaszów, Kraków, małopolskie
- Otoczenie: osiedle bloków mieszkalnych, tereny zielone i rekreacyjne
- Na terenie inwestycji: plac zabaw, boisko, siłownia plenerowa
- W pobliżu przedszkole, boisko, przychodnia, przystanek autobusowy, przystanek tramwajowy, supermarket, stacja benzynowa, kościół, poczta, ogrody płaszów, rzeka
Opis nieruchomości
Zapraszamy do zapoznania się z ofertą 2-pokojowego mieszkania, składającego się z pokoju dziennego, kuchni, sypialni, łazienki i balkonu. (...)
Rozwiń opis

Inwestycja realizowana przez:
Przedsiębiorstwo Budowlane START Sp. j.
Biuro sprzedaży
ul. Twardowskiego 65
Kraków
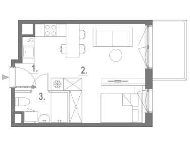
| Mieszkanie68c/56 | 60,15 m² | 14 200 zł/m² | 4/5 | 3 | 854 130 zł |
| Mieszkanie | ||||
|
||||
| 68c/56 |
- Budynek: blok mieszkalny
- Stan wykończenia: deweloperski
- Charakterystyka mieszkania: jednopoziomowe, aneks kuchenny, 1 łazienka
- Ogrzewanie: miejskie
- Powierzchnia dodatkowa: loggia (5,3 m²)
- Miejsce/a postojowe:: w garażu wielostanowiskowym; garaż w bryle budynku, winda z poziomu garażu
naziemne - Udogodnienia: winda
Zapraszamy do zapoznania się z ofertą 3-pokojowego mieszkania, składającego się z pokoju dziennego z aneksem kuchennym, dwóch sypialni, łazienki, WC i loggii.
Więcej
sygnatura: 68c/56
| Mieszkanie68c/63 | 60,27 m² | 14 400 zł/m² | 5/5 | 3 | 867 888 zł |
| Mieszkanie | ||||
|
||||
| 68c/63 |
| Mieszkanie68c/57 | 33,61 m² | 17 800 zł/m² | 4/5 | 2 | 598 258 zł |
| Mieszkanie | ||||
|
||||
| 68c/57 |
| Mieszkanie68c/60 | 34,02 m² | 17 700 zł/m² | 4/5 | 2 | 602 154 zł |
| Mieszkanie | ||||
|
||||
| 68c/60 |
| Mieszkanie68c/61 | 28,22 m² | 17 800 zł/m² | 4/5 | 1 | 502 316 zł |
| Mieszkanie | ||||
|
||||
| 68c/61 |
| Mieszkanie68c/62 | 45,12 m² | 15 700 zł/m² | 4/5 | 2 | 708 384 zł |
| Mieszkanie | ||||
|
||||
| 68c/62 |
| Mieszkanie68c/10 | 60,91 m² | 13 500 zł/m² | 2/5 | 4 | 822 285 zł |
| Mieszkanie | ||||
|
||||
| 68c/10 |
| Mieszkanie68c/20 | 60,91 m² | 13 900 zł/m² | 4/5 | 4 | 846 649 zł |
| Mieszkanie | ||||
|
||||
| 68c/20 |
| Mieszkanie68c/30 | 33,97 m² | 17 400 zł/m² | parter/5 | 2 | 591 078 zł |
| Mieszkanie | ||||
|
||||
| 68c/30 |
| Mieszkanie68c/29 | 58,95 m² | 13 800 zł/m² | parter/5 | 3 | 813 510 zł |
| Mieszkanie | ||||
|
||||
| 68c/29 |
Więcej
Biuro sprzedaży
799 363...
799 363 330
- Zgłoś błąd lub naruszenie










