Nowe mieszkanie Górka Narodowa, ul. Papierni Prądnickich 48, 48a, 48b
Papierni Prądnickich 48, 48a, 48b, Górka Narodowa, Kraków, małopolskie
- 500 410 zł
- 32,60 m²
- 15 350 zł/m²
Biuro sprzedaży
Skontaktuj się
Nowe mieszkanie Górka Narodowa, ul. Papierni Prądnickich 48, 48a, 48b
Papierni Prądnickich 48, 48a, 48b, Górka Narodowa, Kraków, małopolskie
zobacz mapę
zaktualizowane:
22 października 2025
Nowe mieszkanie Górka Narodowa, ul. Papierni Prądnickich 48, 48a, 48b
Inwestycja: Weduta Krakowa
Zaktualizowane: 22 października 2025
500 410 zł 32,60 m² 15 350 zł/m²
II kwartał 2026
2/5
1
garaż
deweloperski
Zobacz na mapie
Termin realizacji:
II kwartał 2026Piętro:
2/5Liczba pokoi:
1Miejsce postojowe:
garażStan mieszkania:
deweloperskiSzczegóły ogłoszenia
- Typ oferty: nowe mieszkanie na sprzedaż
- Cena: 500 410 zł (15 350 zł/m²)
- Termin realizacji: II kwartał 2026
- Status oferty: dostępne
- Rynek: pierwotny (oferta dewelopera)
- Charakterystyka mieszkania: 32,60 m², 1 pokój, 1 łazienka; stan: deweloperski
- Budynek: apartamentowiec
- winda
- Rozkład mieszkania: piętro 2/5, jednopoziomowe
- Powierzchnia dodatkowa: balkon (8,8 m²)
- Kuchnia: aneks kuchenny
- Miejsce/a postojowe: w garażu wielostanowiskowym (55 miejsc); garaż w bryle budynku, winda z poziomu garażu
- Źródło: oferta dewelopera: Architecture Vento, zaktualizowane: 22.10.2025
- sygnatura ogłoszenia: BM21
Lokalizacja
- Inwestycja: Weduta Krakowa
- Adres: Papierni Prądnickich 48, 48a, 48b, Górka Narodowa, Kraków, małopolskie
- Otoczenie: osiedle bloków mieszkalnych, osiedle domów jednorodzinnych, tereny zielone i rekreacyjne
- W pobliżu szkoła podstawowa, przystanek autobusowy, przystanek tramwajowy, park leśny witkowice, rzeka bibiczanka
Opis nieruchomości
Zapraszamy do zapoznania się z ofertą 1-pokojowego mieszkania, składającego się z pokoju dziennego z aneksem kuchennym, łazienki i balkonu. (...)
Rozwiń opis

Inwestycja realizowana przez:
Architecture Vento
Biuro sprzedaży
Ignacego Krasickiego 30/83
Kraków 30-503
| MieszkanieWirtualna wizytaBM18 | 33,50 m² | 15 350 zł/m² | 2/5 | 1 | 514 225 zł |
| MieszkanieWirtualna wizyta | ||||
|
||||
| BM18 |
- Budynek: apartamentowiec
- Stan wykończenia: deweloperski
- Charakterystyka mieszkania: jednopoziomowe, aneks kuchenny, 1 łazienka
- Ogrzewanie: centralne ogrzewanie, gazowe
- Powierzchnia dodatkowa: balkon (9 m²)
- Miejsce/a postojowe:: w garażu wielostanowiskowym (55 miejsc); garaż w bryle budynku, winda z poziomu garażu
- Udogodnienia: winda
Zapraszamy do zapoznania się z ofertą 1-pokojowego mieszkania, składającego się z pokoju dziennego z aneksem kuchennym, łazienki i balkonu.
Więcej
sygnatura: BM18
| MieszkanieWirtualna wizytaM47 | 36,25 m² | 15 049,99 zł/m² | 5/5 | 1 | 545 562 zł |
| MieszkanieWirtualna wizyta | ||||
|
||||
| M47 |
| MieszkanieBM2 | 36,35 m² | 14 900 zł/m² | 1/5 | 1 | 541 615 zł |
| Mieszkanie | ||||
|
||||
| BM2 |
| MieszkanieBM7 | 33,40 m² | 15 600 zł/m² | 1/5 | 1 | 521 040 zł |
| Mieszkanie | ||||
|
||||
| BM7 |
| MieszkanieBM6 | 49,10 m² | 14 800 zł/m² | 1/5 | 3 | 726 680 zł |
| Mieszkanie | ||||
|
||||
| BM6 |
| MieszkanieBM01 | 49,20 m² | 14 500 zł/m² | 1/5 | 3 | 713 400 zł |
| Mieszkanie | ||||
|
||||
| BM01 |
| MieszkanieBM35 | 79,10 m² | 15 150 zł/m² | 4/5 | 4 | 1 198 365 zł |
| Mieszkanie | ||||
|
||||
| BM35 |
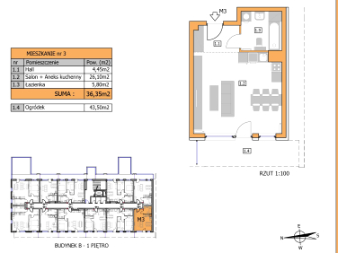
| MieszkanieBM3 | 36,35 m² | 15 500 zł/m² | 1/5 | 1 | 563 425 zł |
| Mieszkanie | ||||
|
||||
| BM3 |
| MieszkanieBM4 | 50 m² | 14 800 zł/m² | 1/5 | 3 | 740 000 zł |
| Mieszkanie | ||||
|
||||
| BM4 |
| MieszkanieBM53 | 37,10 m² | 15 000 zł/m² | 5/5 | 1 | 556 500 zł |
| Mieszkanie | ||||
|
||||
| BM53 |
Więcej
Biuro sprzedaży
799 374...
799 374 810
- Zgłoś błąd lub naruszenie










