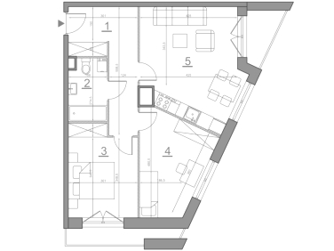
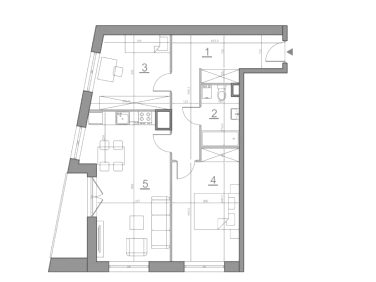
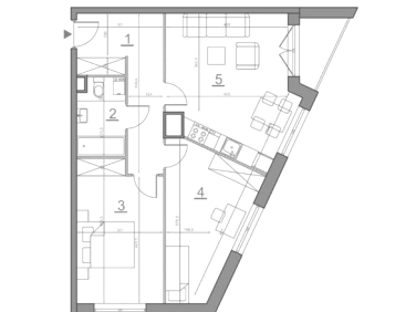
Nowe mieszkanie Prokocim, ul. Republiki Korczakowskiej 21
Republiki Korczakowskiej 21, Prokocim, Kraków, małopolskie
- 973 500 zł
- 64,90 m²
- 15 000 zł/m²
Biuro sprzedaży
Skontaktuj się
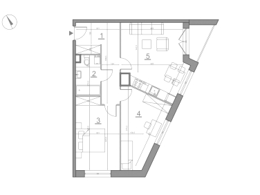
Nowe mieszkanie Prokocim, ul. Republiki Korczakowskiej 21
Republiki Korczakowskiej 21, Prokocim, Kraków, małopolskie
zobacz mapę
zaktualizowane:
16 lipca 2025
Nowe mieszkanie Prokocim, ul. Republiki Korczakowskiej 21
Inwestycja: Start City
Zaktualizowane: 16 lipca 2025
973 500 zł 64,90 m² 15 000 zł/m²
II kwartał 2025
8/10
3
garaż
deweloperski
Zobacz na mapie
Termin realizacji:
II kwartał 2025Piętro:
8/10Liczba pokoi:
3Miejsce postojowe:
garażStan mieszkania:
deweloperskiSzczegóły ogłoszenia
- Typ oferty: nowe mieszkanie na sprzedaż
- Cena: 973 500 zł (15 000 zł/m²)
- Termin realizacji: II kwartał 2025
- Status oferty: dostępne
- Rynek: pierwotny (oferta dewelopera)
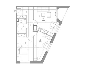
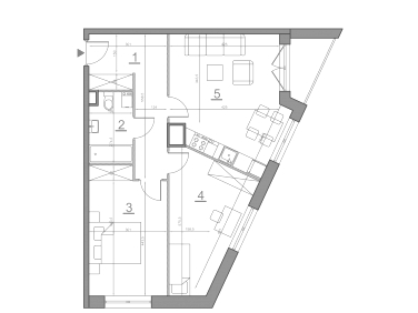
- Charakterystyka mieszkania: 64,90 m², 3 pokoje, 1 łazienka; stan: deweloperski
- Budynek: apartamentowiec
- winda
- Rozkład mieszkania: piętro 8/10, jednopoziomowe
- Powierzchnia dodatkowa: loggia (3,8 m²)
- Kuchnia: aneks kuchenny
- Miejsce/a postojowe: w garażu wielostanowiskowym, przynależne do mieszkania - z obowiązkiem zakupu; garaż w bryle budynku, winda z poziomu garażu
naziemne, przynależne do mieszkania - z obowiązkiem zakupu - Bezpieczeństwo: monitoring
- Źródło: oferta dewelopera: Przedsiębiorstwo Budowlane START Sp. j., zaktualizowane: 16.07.2025
- sygnatura ogłoszenia: 21/72
Lokalizacja
- Inwestycja: Start City
- Adres: Republiki Korczakowskiej 21, Prokocim, Kraków, małopolskie
- W pobliżu przedszkole, szkoła podstawowa, boisko, przystanek autobusowy, przystanek tramwajowy, park jerzmanowskiego, park lilii wenedy, park aleksandry, kaufland
Opis nieruchomości
Zapraszamy do zapoznania się z ofertą 3-pokojowego mieszkania, składającego się z pokoju dziennego z aneksem kuchennymi, dwóch sypialni, łazienki oraz loggii. (...)
Rozwiń opis

Inwestycja realizowana przez:
Przedsiębiorstwo Budowlane START Sp. j.
Biuro sprzedaży
Republiki Korczakowskiej 21
Kraków
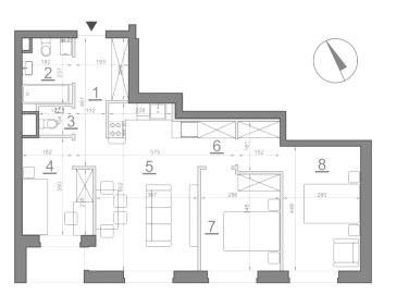
| Mieszkanie21/10 | 58,08 m² | 18 000 zł/m² | 2/10 | 3 | 1 045 440 zł |
| Mieszkanie | ||||
|
||||
| 21/10 |
- Budynek: apartamentowiec
- Stan wykończenia: deweloperski
- Charakterystyka mieszkania: jednopoziomowe, aneks kuchenny, 1 łazienka
- Ogrzewanie: miejskie
- Powierzchnia dodatkowa: balkon (3,4 m²), loggia (2,7 m²)
- Miejsce/a postojowe:: w garażu wielostanowiskowym, przynależne do mieszkania - z obowiązkiem zakupu; garaż w bryle budynku, winda z poziomu garażu
naziemne, przynależne do mieszkania - z obowiązkiem zakupu - Udogodnienia: winda
Zapraszamy do zapoznania się z ofertą 3-pokojowego mieszkania, składającego się z pokoju dziennego z aneksem kuchennym, dwóch sypialni, łazienki oraz
Więcej
sygnatura: 21/10
| Mieszkanie21/1 | 58,08 m² | 14 100 zł/m² | 1/10 | 3 | 818 928 zł |
| Mieszkanie | ||||
|
||||
| 21/1 |
| Mieszkanie21/5 | 61,16 m² | 13 900 zł/m² | 1/10 | 3 | 850 124 zł |
| Mieszkanie | ||||
|
||||
| 21/5 |
| Mieszkanie21/19 | 63,63 m² | 14 300 zł/m² | 3/10 | 3 | 909 909 zł |
| Mieszkanie | ||||
|
||||
| 21/19 |
| Mieszkanie21/28 | 63,56 m² | 14 400 zł/m² | 4/10 | 3 | 915 264 zł |
| Mieszkanie | ||||
|
||||
| 21/28 |
| Mieszkanie21/36 | 64,70 m² | 14 600 zł/m² | 4/10 | 3 | 944 620 zł |
| Mieszkanie | ||||
|
||||
| 21/36 |
| Mieszkanie21/37 | 63,56 m² | 14 500 zł/m² | 5/10 | 3 | 921 620 zł |
| Mieszkanie | ||||
|
||||
| 21/37 |
| Mieszkanie21/46 | 63,58 m² | 14 600 zł/m² | 6/10 | 3 | 928 268 zł |
| Mieszkanie | ||||
|
||||
| 21/46 |
| Mieszkanie21/50 | 67,86 m² | 14 400 zł/m² | 6/10 | 3 | 977 184 zł |
| Mieszkanie | ||||
|
||||
| 21/50 |
| Mieszkanie21/54 | 64,96 m² | 14 800 zł/m² | 6/10 | 3 | 961 408 zł |
| Mieszkanie | ||||
|
||||
| 21/54 |
| Mieszkanie21/55 | 63,56 m² | 14 700 zł/m² | 7/10 | 3 | 934 332 zł |
| Mieszkanie | ||||
|
||||
| 21/55 |
| Mieszkanie21/59 | 67,72 m² | 14 500 zł/m² | 7/10 | 3 | 981 940 zł |
| Mieszkanie | ||||
|
||||
| 21/59 |
| Mieszkanie21/63 | 64,89 m² | 14 900 zł/m² | 7/10 | 3 | 966 861 zł |
| Mieszkanie | ||||
|
||||
| 21/63 |
| Mieszkanie21/64 | 63,62 m² | 14 800 zł/m² | 8/10 | 3 | 941 576 zł |
| Mieszkanie | ||||
|
||||
| 21/64 |
| Mieszkanie21/68 | 67,77 m² | 14 600 zł/m² | 8/10 | 3 | 989 442 zł |
| Mieszkanie | ||||
|
||||
| 21/68 |
| Mieszkanie21/73 | 63,56 m² | 14 900 zł/m² | 9/10 | 3 | 947 044 zł |
| Mieszkanie | ||||
|
||||
| 21/73 |
| Mieszkanie21/81 | 64,86 m² | 15 100 zł/m² | 9/10 | 3 | 979 386 zł |
| Mieszkanie | ||||
|
||||
| 21/81 |
| Mieszkanie21/84 | 68,04 m² | 14 800 zł/m² | 10/10 | 3 | 1 006 992 zł |
| Mieszkanie | ||||
|
||||
| 21/84 |
| Mieszkanie21/86 | 106,57 m² | 16 300 zł/m² | 10/10 | 4 | 1 737 091 zł |
| Mieszkanie | ||||
|
||||
| 21/86 |
Biuro sprzedaży
799 363...
799 363 330
- Zgłoś błąd lub naruszenie



















