Mieszkanie Prądnik Biały, ul. Zygmunta Glogera 2
Zygmunta Glogera 2, Prądnik Biały, Kraków, małopolskie
- 885 000 zł
- 61,74 m²
- 14 334,31 zł/m²
Biuro Sprzedaży
Skontaktuj się
Mieszkanie Prądnik Biały, ul. Zygmunta Glogera 2
Zygmunta Glogera 2, Prądnik Biały, Kraków, małopolskie
zaktualizowane:
13 kwietnia 2026
Mieszkanie Prądnik Biały, ul. Zygmunta Glogera 2
Inwestycja: Mieszkaj w Mieście - Ogrody Glogera
Zaktualizowane: 13 kwietnia 2026
885 000 zł 61,74 m² 14 334,31 zł/m²
oddana do użytku
3/3
3
garaż
deweloperski
Zobacz na mapie
Stan inwestycji:
oddana do użytkuPiętro:
3/3Liczba pokoi:
3Miejsce postojowe:
garażStan mieszkania:
deweloperskiSzczegóły ogłoszenia
- Typ oferty: mieszkanie na sprzedaż
- Cena: 885 000 zł (14 334,31 zł/m²)
- Termin realizacji: 2025, oddana do użytku
- Status oferty: dostępne
- Rynek: pierwotny (oferta dewelopera)
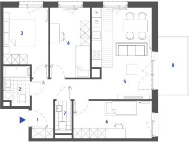
- Charakterystyka mieszkania: 61,74 m², 3 pokoje, 1 łazienka; stan: deweloperski
- Budynek: blok mieszkalny
- winda
- Rozkład mieszkania: piętro 3/3, jednopoziomowe
- Powierzchnia dodatkowa: balkon (7,2 m²), balkon (3,6 m²)
- Kuchnia: oddzielna kuchnia
- Miejsce/a postojowe: w garażu wielostanowiskowym, przynależne do mieszkania; garaż w bryle budynku, winda z poziomu garażu
naziemne, przynależne do mieszkania - Bezpieczeństwo: monitoring
- Źródło: oferta dewelopera: Henniger Investment S.A., zaktualizowane: 13.04.2026
- sygnatura ogłoszenia: A1.103.M05
Lokalizacja
- Inwestycja: Mieszkaj w Mieście - Ogrody Glogera
- Adres: Zygmunta Glogera 2, Prądnik Biały, Kraków, małopolskie
- Otoczenie: osiedle bloków mieszkalnych, tereny zielone i rekreacyjne, obiekty handlowo-usługowe
- Na terenie inwestycji: plac zabaw, wideodomofony, teren rekreacyjny 2 600 m², stacja naprawcza rowerów i wózków dziecięcych, możliwość montażu klimatyzacji, rolety zewnętrzne na parterze
- W pobliżu żłobek, przedszkole, szkoła podstawowa, siłownia, tenis, apteka, przychodnia, przystanek autobusowy, przystanek tramwajowy, supermarket, centrum handlowe, kościół, poczta
Opis nieruchomości
Funkcjonalne, 3-pokojowe mieszkanie z kuchnią, łazienką i dwoma balkonami, zlokalizowane w inwestycji Ogrody Glogera, na krakowskim Prądniku Białym. (...)

Inwestycja realizowana przez:
Henniger Investment S.A.
Biuro Sprzedaży
ul. Glogera 2
Kraków 31-222
| MieszkanieA1.101.M01 | 58,65 m² | 13 810,74 zł/m² | 1/3 | 3 | 810 000 zł |
| Mieszkanie | ||||
|
||||
| A1.101.M01 |
| MieszkanieA1.101.M04 | 36,77 m² | 15 637,75 zł/m² | 1/3 | 2 | 575 000 zł |
| Mieszkanie | ||||
|
||||
| A1.101.M04 |
| MieszkanieA1.101.M05 | 61,77 m² | 13 598,83 zł/m² | 1/3 | 3 | 840 000 zł |
| Mieszkanie | ||||
|
||||
| A1.101.M05 |
| MieszkanieA1.103.M03 | 35,53 m² | 16 042,78 zł/m² | 3/3 | 2 | 570 000 zł |
| Mieszkanie | ||||
|
||||
| A1.103.M03 |
| MieszkanieA2.101.M04 | 58,77 m² | 13 782,54 zł/m² | 1/3 | 3 | 810 000 zł |
| Mieszkanie | ||||
|
||||
| A2.101.M04 |
| MieszkanieA3.100.M01 | 58,64 m² | 14 239,43 zł/m² | parter/3 | 3 | 835 000 zł |
| Mieszkanie | ||||
|
||||
| A3.100.M01 |
| MieszkanieA3.100.M07 | 40,64 m² | 17 101,38 zł/m² | parter/3 | 2 | 695 000 zł |
| Mieszkanie | ||||
|
||||
| A3.100.M07 |
| MieszkanieA3.101.M04 | 66,44 m² | 15 803,73 zł/m² | 1/3 | 3 | 1 050 000 zł |
| Mieszkanie | ||||
|
||||
| A3.101.M04 |
| MieszkanieA3.101.M05 | 55,60 m² | 16 097,12 zł/m² | 1/3 | 3 | 895 000 zł |
| Mieszkanie | ||||
|
||||
| A3.101.M05 |
| MieszkanieA4.102.M01 | 58,75 m² | 14 127,66 zł/m² | 2/3 | 3 | 830 000 zł |
| Mieszkanie | ||||
|
||||
| A4.102.M01 |
Biuro Sprzedaży
885 160...
885 160 575
601 701 979










