- Jesteś tutaj:
- Strona Główna
- Inwestycje
- Enklawa Bukowa II
- Mieszkanie 56,00 m² - sprzedaż
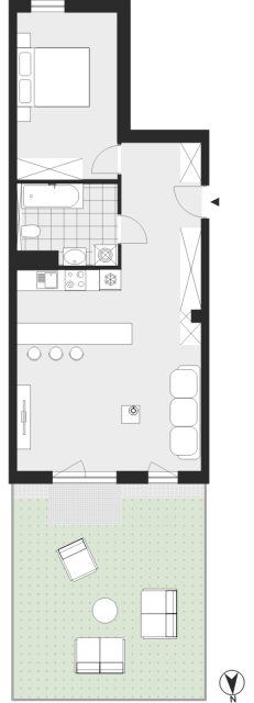
Mieszkanie Rybitwy, ul. Bukowa 65 i 69
Bukowa 65 i 69, Rybitwy, Kraków, małopolskie
- 644 898 zł
- 56,57 m²
- 11 400 zł/m²
Biuro sprzedaży
Skontaktuj się
Mieszkanie Rybitwy, ul. Bukowa 65 i 69
Bukowa 65 i 69, Rybitwy, Kraków, małopolskie
zaktualizowane:
14 lipca 2025
1/7
Wróć do galerii X
Widok ulicy jest niedostępny dla tej lokalizacji
OK
Lokalizacja przybliżona
Mieszkanie Rybitwy, ul. Bukowa 65 i 69
Inwestycja: Enklawa Bukowa II
Zaktualizowane: 14 lipca 2025
644 898 zł 56,57 m² 11 400 zł/m²
IV kwartał 2027
parter/5
2
-
deweloperski
Zobacz na mapie
Termin realizacji:
IV kwartał 2027Piętro:
parter/5Liczba pokoi:
2Miejsce postojowe:
-Stan mieszkania:
deweloperskiSzczegóły ogłoszenia
- Typ oferty: mieszkanie na sprzedaż
- Cena: 644 898 zł (11 400 zł/m²)
- Termin realizacji: IV kwartał 2027
- Status oferty: dostępne
- Rynek: pierwotny (oferta dewelopera)
- Charakterystyka mieszkania: 56,57 m², 2 pokoje, 1 łazienka; stan: deweloperski
- Budynek: blok mieszkalny
- winda
- Rozkład mieszkania: piętro 0/5, jednopoziomowe
- Powierzchnia dodatkowa: ogródek (32,4 m²)
- Kuchnia: aneks kuchenny
- Źródło: oferta dewelopera: Wawel Service, zaktualizowane: 14.07.2025
- sygnatura ogłoszenia: B0.11
Lokalizacja
- Inwestycja: Enklawa Bukowa II
- Adres: Bukowa 65 i 69, Rybitwy, Kraków, małopolskie
- Na terenie inwestycji: plac zabaw, miejsce ładowania pojazdów elektrycznych
- W pobliżu przedszkole, szkoła podstawowa, restauracja, kawiarnia, przystanek autobusowy, centrum handlowe, sklep spożywczy, przystań brzegi, centrum sportowe i fitness, plaża i zalew bagry, parking p&r mały płaszów, stacja kolejowa bieżanów, sklepy lidl, biedronka, ch m1
Opis nieruchomości
Zapraszamy do zapoznania się z ofertą 2-pokojowego mieszkania, składającego się z pokoju dziennego z aneksem kuchennym, sypialni, łazienki i ogródka. (...)
Zapraszamy do zapoznania się z ofertą 2-pokojowego mieszkania, składającego się z pokoju dziennego z aneksem kuchennym, sypialni, łazienki i ogródka. Lokal znajduje się w II etapie inwestycji Enklawa Bukowa w Krakowie.
Zakup miejsca postojowego jest dobrowolny i nie jest wymagany przy nabyciu mieszkania.
✔ Naziemne: od 30 000 PLN
✔ W garażu podziemnym: w przedziale 40 000–55 000 PLN
O INWESTYCJI
Enklawa Bukowa II - miejsce do życia z potencjałem
II Etap inwestycji w Podgórzu, ul. Bukowa 65 i 69 IV kwartał 2027
Kolejny etap inwestycji Enklawa Bukowa w rejonie ulic Bukowej i Śliwiaka to projekt Wawel Service stworzony z myślą o przyszłych mieszkańcach. Zlokalizowana w dzielnicy Podgórze w rejonie Rybitwy – Północ w miejscu z ogromnym potencjałem. Właśnie tu powstaje nowoczesna i zielona dzielnica Krakowa.
Atuty inwestycji:
✔ plac zabaw, zielony teren rekreacyjny
✔ stojaki i wiaty rowerowe
✔ stanowiska naprawcze dla rowerów
✔ balkony, tarasy lub ogródki
✔ miejsca postojowe i garaż podziemny
✔ stanowiska ładowania pojazdów elektrycznych
✔ komórki lokatorskie
Lokalizacja:
✔ 7 min przystanek autobusowy Półłanki
✔ 8 min sklep spożywczy
✔ 10 – 15 min Szkoła podstawowa, przedszkole
✔ 7 min Przystań Brzegi
✔ 11 min centrum sportowe i fitness
✔ 18 min plaża i Zalew Bagry
✔ 4 min parking P&R Mały Płaszów
✔ 8 min Stacja Kolejowa Bieżanów
✔ 6 – 12 min sklepy Lidl, Biedronka, CH M1
Enklawa Bukowa II — nowocześnie, praktycznie, w zgodzie z naturą
Inwestycja Enklawa Bukowa, jako cała inwestycja, tworzy spójną przestrzeń z otaczającymi ją terenami zielonymi, które zapewnią przyszłym mieszkańcom aktywne spędzenie czasu. Nowoczesne formy architektoniczne oraz ponadczasowe połączenie bieli i antracytu nadadzą atrakcyjny i modernistyczny charakter inwestycji. Całości dopełnią starannie zaplanowane nasadzenia traw, krzewów, drzew, przede wszystkim buków.
Szczegóły inwestycji
✔ 2 budynki: jeden pięciokondygnacyjny, drugi sześciokondygnacyjny,
✔ łącznie 189 lokali mieszkalnych
✔ mieszkania 1, 2, 3 lub 4 pokojowe
✔ metraże od 32,93 m² do 92,98 m²
✔ teren monitorowany
✔ planowy termin odbioru IV kwartał 2027 r.
Dwa budynki w tym etapie zostały również zaprojektowane w sposób, aby zapewnić mieszkańcom nie tylko wygodne i praktyczne w życiu codziennym przestrzenie, ale także uzyskać przyjemne wrażenia estetyczne. Mieszkania posiadać będą balkony, w budynku C na najwyższej kondygnacji również tarasy, a do lokali parterowych przynależeć będą zielone, zaciszne ogródki. Dla mieszkańców zaplanowano miejsca postojowe na terenie osiedla oraz w garażu podziemnym, w którym również będą się znajdowały funkcjonalne komórki lokatorskie. Dodatkowo do dyspozycji mieszkańców będą stojaki oraz wiaty rowerowe. Dla mieszkańców osiedla zaplanowano tereny rekreacyjne z nowoczesnymi ławeczkami i stolikami, a dla najmłodszych atrakcyjny plac zabaw.
Rejon Rybitw podobnie jak Płaszów są objęte strategicznym planem rozwoju, który zakłada powstanie nowoczesnej, multifunkcjonalnej i zielonej dzielnicy, która będzie odpowiadała na współczesne potrzeby mieszkańców.
II etap tej inwestycji to również harmonijne połączenie architektury i natury. Liczne nasadzenia drzew, kolorowe rabaty i zielone alejki stworzą przyjazne otoczenie dla przyszłych mieszkańców. Tutaj każdy krok to krok wśród zieleni i natury. To idealne miejsce na rodzinny relaks, czytanie książek w cieniu drzew i obserwowanie ptaków. Buki to nie tylko drzewa – to symbol nowego, zielonego życia na naszym osiedlu. Tworzenie przestrzeni w duchu i w zgodzie z naturą już od dłuższego czasu jest wpisane w strategię Wawel Service.
Zobacz pozostałe ogłoszenia inwestycji Enklawa Bukowa II
| MieszkanieWirtualna wizytaB0.9 | 65,36 m² | 10 800 zł/m² | parter/5 | 3 | 705 888 zł |
| MieszkanieWirtualna wizyta | ||||
|
||||
| B0.9 |
- Budynek: blok mieszkalny
- Stan wykończenia: deweloperski, możliwe wykończenie "pod klucz"
- Charakterystyka mieszkania: jednopoziomowe, aneks kuchenny, 1 łazienka
- Ogrzewanie: miejskie
- Powierzchnia dodatkowa: ogródek (33,8 m²), ogródek (16,5 m²)
- Udogodnienia: winda
Zapraszamy do zapoznania się z ofertą 3-pokojowego mieszkania, składającego się z pokoju dziennego z aneksem kuchennym, dwóch sypialni, łazienki, WC i
Zapraszamy do zapoznania się z ofertą 3-pokojowego mieszkania, składającego się z pokoju dziennego z aneksem kuchennym, dwóch sypialni, łazienki, WC i dwóch ogródków. Lokal znajduje się w II etapie inwestycji Enklawa Bukowa w Krakowie.
Zakup miejsca postojowego jest dobrowolny i nie jest wymagany przy nabyciu mieszkania.
✔ Naziemne: od 30 000 PLN
✔ W garażu podziemnym: w przedziale 40 000–55 000 PLN
O INWESTYCJI
Enklawa Bukowa II - miejsce do życia z potencjałem
II Etap inwestycji w Podgórzu, ul. Bukowa 65 i 69 IV kwartał 2027
Kolejny etap inwestycji Enklawa Bukowa w rejonie ulic Bukowej i Śliwiaka to projekt Wawel Service stworzony z myślą o przyszłych mieszkańcach. Zlokalizowana w dzielnicy Podgórze w rejonie Rybitwy – Północ w miejscu z ogromnym potencjałem. Właśnie tu powstaje nowoczesna i zielona dzielnica Krakowa.
Atuty inwestycji:
✔ plac zabaw, zielony teren rekreacyjny
✔ stojaki i wiaty rowerowe
✔ stanowiska naprawcze dla rowerów
✔ balkony, tarasy lub ogródki
✔ miejsca postojowe i garaż podziemny
✔ stanowiska ładowania pojazdów elektrycznych
✔ komórki lokatorskie
Lokalizacja:
✔ 7 min przystanek autobusowy Półłanki
✔ 8 min sklep spożywczy
✔ 10 – 15 min Szkoła podstawowa, przedszkole
✔ 7 min Przystań Brzegi
✔ 11 min centrum sportowe i fitness
✔ 18 min plaża i Zalew Bagry
✔ 4 min parking P&R Mały Płaszów
✔ 8 min Stacja Kolejowa Bieżanów
✔ 6 – 12 min sklepy Lidl, Biedronka, CH M1
Enklawa Bukowa II — nowocześnie, praktycznie, w zgodzie z naturą
Inwestycja Enklawa Bukowa, jako cała inwestycja, tworzy spójną przestrzeń z otaczającymi ją terenami zielonymi, które zapewnią przyszłym mieszkańcom aktywne spędzenie czasu. Nowoczesne formy architektoniczne oraz ponadczasowe połączenie bieli i antracytu nadadzą atrakcyjny i modernistyczny charakter inwestycji. Całości dopełnią starannie zaplanowane nasadzenia traw, krzewów, drzew, przede wszystkim buków.
Szczegóły inwestycji
✔ 2 budynki: jeden pięciokondygnacyjny, drugi sześciokondygnacyjny,
✔ łącznie 189 lokali mieszkalnych
✔ mieszkania 1, 2, 3 lub 4 pokojowe
✔ metraże od 32,93 m² do 92,98 m²
✔ teren monitorowany
✔ planowy termin odbioru IV kwartał 2027 r.
Dwa budynki w tym etapie zostały również zaprojektowane w sposób, aby zapewnić mieszkańcom nie tylko wygodne i praktyczne w życiu codziennym przestrzenie, ale także uzyskać przyjemne wrażenia estetyczne. Mieszkania posiadać będą balkony, w budynku C na najwyższej kondygnacji również tarasy, a do lokali parterowych przynależeć będą zielone, zaciszne ogródki. Dla mieszkańców zaplanowano miejsca postojowe na terenie osiedla oraz w garażu podziemnym, w którym również będą się znajdowały funkcjonalne komórki lokatorskie. Dodatkowo do dyspozycji mieszkańców będą stojaki oraz wiaty rowerowe. Dla mieszkańców osiedla zaplanowano tereny rekreacyjne z nowoczesnymi ławeczkami i stolikami, a dla najmłodszych atrakcyjny plac zabaw.
Rejon Rybitw podobnie jak Płaszów są objęte strategicznym planem rozwoju, który zakłada powstanie nowoczesnej, multifunkcjonalnej i zielonej dzielnicy, która będzie odpowiadała na współczesne potrzeby mieszkańców.
II etap tej inwestycji to również harmonijne połączenie architektury i natury. Liczne nasadzenia drzew, kolorowe rabaty i zielone alejki stworzą przyjazne otoczenie dla przyszłych mieszkańców. Tutaj każdy krok to krok wśród zieleni i natury. To idealne miejsce na rodzinny relaks, czytanie książek w cieniu drzew i obserwowanie ptaków. Buki to nie tylko drzewa – to symbol nowego, zielonego życia na naszym osiedlu. Tworzenie przestrzeni w duchu i w zgodzie z naturą już od dłuższego czasu jest wpisane w strategię Wawel Service.
Więcej
sygnatura: B0.9
| MieszkanieWirtualna wizytaB2.5 | 48,65 m² | 12 500 zł/m² | 2/5 | 2 | 608 125 zł |
| MieszkanieWirtualna wizyta | ||||
|
||||
| B2.5 |
- Budynek: blok mieszkalny
- Stan wykończenia: deweloperski, możliwe wykończenie "pod klucz"
- Charakterystyka mieszkania: jednopoziomowe, aneks kuchenny, 1 łazienka
- Ogrzewanie: miejskie
- Powierzchnia dodatkowa: balkon (3,4 m²)
- Udogodnienia: winda
Zapraszamy do zapoznania się z ofertą 2-pokojowego mieszkania, składającego się z pokoju dziennego z aneksem kuchennym, sypialni, łazienki i balkonu.
Zapraszamy do zapoznania się z ofertą 2-pokojowego mieszkania, składającego się z pokoju dziennego z aneksem kuchennym, sypialni, łazienki i balkonu. Lokal znajduje się w II etapie inwestycji Enklawa Bukowa w Krakowie.
Zakup miejsca postojowego jest dobrowolny i nie jest wymagany przy nabyciu mieszkania.
✔ Naziemne: od 30 000 PLN
✔ W garażu podziemnym: w przedziale 40 000–55 000 PLN
O INWESTYCJI
Enklawa Bukowa II - miejsce do życia z potencjałem
II Etap inwestycji w Podgórzu, ul. Bukowa 65 i 69 IV kwartał 2027
Kolejny etap inwestycji Enklawa Bukowa w rejonie ulic Bukowej i Śliwiaka to projekt Wawel Service stworzony z myślą o przyszłych mieszkańcach. Zlokalizowana w dzielnicy Podgórze w rejonie Rybitwy – Północ w miejscu z ogromnym potencjałem. Właśnie tu powstaje nowoczesna i zielona dzielnica Krakowa.
Atuty inwestycji:
✔ plac zabaw, zielony teren rekreacyjny
✔ stojaki i wiaty rowerowe
✔ stanowiska naprawcze dla rowerów
✔ balkony, tarasy lub ogródki
✔ miejsca postojowe i garaż podziemny
✔ stanowiska ładowania pojazdów elektrycznych
✔ komórki lokatorskie
Lokalizacja:
✔ 7 min przystanek autobusowy Półłanki
✔ 8 min sklep spożywczy
✔ 10 – 15 min Szkoła podstawowa, przedszkole
✔ 7 min Przystań Brzegi
✔ 11 min centrum sportowe i fitness
✔ 18 min plaża i Zalew Bagry
✔ 4 min parking P&R Mały Płaszów
✔ 8 min Stacja Kolejowa Bieżanów
✔ 6 – 12 min sklepy Lidl, Biedronka, CH M1
Enklawa Bukowa II — nowocześnie, praktycznie, w zgodzie z naturą
Inwestycja Enklawa Bukowa, jako cała inwestycja, tworzy spójną przestrzeń z otaczającymi ją terenami zielonymi, które zapewnią przyszłym mieszkańcom aktywne spędzenie czasu. Nowoczesne formy architektoniczne oraz ponadczasowe połączenie bieli i antracytu nadadzą atrakcyjny i modernistyczny charakter inwestycji. Całości dopełnią starannie zaplanowane nasadzenia traw, krzewów, drzew, przede wszystkim buków.
Szczegóły inwestycji
✔ 2 budynki: jeden pięciokondygnacyjny, drugi sześciokondygnacyjny,
✔ łącznie 189 lokali mieszkalnych
✔ mieszkania 1, 2, 3 lub 4 pokojowe
✔ metraże od 32,93 m² do 92,98 m²
✔ teren monitorowany
✔ planowy termin odbioru IV kwartał 2027 r.
Dwa budynki w tym etapie zostały również zaprojektowane w sposób, aby zapewnić mieszkańcom nie tylko wygodne i praktyczne w życiu codziennym przestrzenie, ale także uzyskać przyjemne wrażenia estetyczne. Mieszkania posiadać będą balkony, w budynku C na najwyższej kondygnacji również tarasy, a do lokali parterowych przynależeć będą zielone, zaciszne ogródki. Dla mieszkańców zaplanowano miejsca postojowe na terenie osiedla oraz w garażu podziemnym, w którym również będą się znajdowały funkcjonalne komórki lokatorskie. Dodatkowo do dyspozycji mieszkańców będą stojaki oraz wiaty rowerowe. Dla mieszkańców osiedla zaplanowano tereny rekreacyjne z nowoczesnymi ławeczkami i stolikami, a dla najmłodszych atrakcyjny plac zabaw.
Rejon Rybitw podobnie jak Płaszów są objęte strategicznym planem rozwoju, który zakłada powstanie nowoczesnej, multifunkcjonalnej i zielonej dzielnicy, która będzie odpowiadała na współczesne potrzeby mieszkańców.
II etap tej inwestycji to również harmonijne połączenie architektury i natury. Liczne nasadzenia drzew, kolorowe rabaty i zielone alejki stworzą przyjazne otoczenie dla przyszłych mieszkańców. Tutaj każdy krok to krok wśród zieleni i natury. To idealne miejsce na rodzinny relaks, czytanie książek w cieniu drzew i obserwowanie ptaków. Buki to nie tylko drzewa – to symbol nowego, zielonego życia na naszym osiedlu. Tworzenie przestrzeni w duchu i w zgodzie z naturą już od dłuższego czasu jest wpisane w strategię Wawel Service.
Więcej
sygnatura: B2.5
| MieszkanieWirtualna wizytaC0.2 | 42,74 m² | 12 600 zł/m² | parter/5 | 2 | 538 524 zł |
| MieszkanieWirtualna wizyta | ||||
|
||||
| C0.2 |
- Budynek: blok mieszkalny
- Stan wykończenia: deweloperski, możliwe wykończenie "pod klucz"
- Charakterystyka mieszkania: jednopoziomowe, aneks kuchenny, 1 łazienka
- Ogrzewanie: miejskie
- Powierzchnia dodatkowa: ogródek (9 m²)
- Udogodnienia: winda
Zapraszamy do zapoznania się z ofertą 2-pokojowego mieszkania, składającego się z pokoju dziennego z aneksem kuchennym, sypialni, łazienki i ogródka.
Zapraszamy do zapoznania się z ofertą 2-pokojowego mieszkania, składającego się z pokoju dziennego z aneksem kuchennym, sypialni, łazienki i ogródka. Lokal znajduje się w II etapie inwestycji Enklawa Bukowa w Krakowie.
Zakup miejsca postojowego jest dobrowolny i nie jest wymagany przy nabyciu mieszkania.
✔ Naziemne: od 30 000 PLN
✔ W garażu podziemnym: w przedziale 40 000–55 000 PLN
O INWESTYCJI
Enklawa Bukowa II - miejsce do życia z potencjałem
II Etap inwestycji w Podgórzu, ul. Bukowa 65 i 69 IV kwartał 2027
Kolejny etap inwestycji Enklawa Bukowa w rejonie ulic Bukowej i Śliwiaka to projekt Wawel Service stworzony z myślą o przyszłych mieszkańcach. Zlokalizowana w dzielnicy Podgórze w rejonie Rybitwy – Północ w miejscu z ogromnym potencjałem. Właśnie tu powstaje nowoczesna i zielona dzielnica Krakowa.
Atuty inwestycji:
✔ plac zabaw, zielony teren rekreacyjny
✔ stojaki i wiaty rowerowe
✔ stanowiska naprawcze dla rowerów
✔ balkony, tarasy lub ogródki
✔ miejsca postojowe i garaż podziemny
✔ stanowiska ładowania pojazdów elektrycznych
✔ komórki lokatorskie
Lokalizacja:
✔ 7 min przystanek autobusowy Półłanki
✔ 8 min sklep spożywczy
✔ 10 – 15 min Szkoła podstawowa, przedszkole
✔ 7 min Przystań Brzegi
✔ 11 min centrum sportowe i fitness
✔ 18 min plaża i Zalew Bagry
✔ 4 min parking P&R Mały Płaszów
✔ 8 min Stacja Kolejowa Bieżanów
✔ 6 – 12 min sklepy Lidl, Biedronka, CH M1
Enklawa Bukowa II — nowocześnie, praktycznie, w zgodzie z naturą
Inwestycja Enklawa Bukowa, jako cała inwestycja, tworzy spójną przestrzeń z otaczającymi ją terenami zielonymi, które zapewnią przyszłym mieszkańcom aktywne spędzenie czasu. Nowoczesne formy architektoniczne oraz ponadczasowe połączenie bieli i antracytu nadadzą atrakcyjny i modernistyczny charakter inwestycji. Całości dopełnią starannie zaplanowane nasadzenia traw, krzewów, drzew, przede wszystkim buków.
Szczegóły inwestycji
✔ 2 budynki: jeden pięciokondygnacyjny, drugi sześciokondygnacyjny,
✔ łącznie 189 lokali mieszkalnych
✔ mieszkania 1, 2, 3 lub 4 pokojowe
✔ metraże od 32,93 m² do 92,98 m²
✔ teren monitorowany
✔ planowy termin odbioru IV kwartał 2027 r.
Dwa budynki w tym etapie zostały również zaprojektowane w sposób, aby zapewnić mieszkańcom nie tylko wygodne i praktyczne w życiu codziennym przestrzenie, ale także uzyskać przyjemne wrażenia estetyczne. Mieszkania posiadać będą balkony, w budynku C na najwyższej kondygnacji również tarasy, a do lokali parterowych przynależeć będą zielone, zaciszne ogródki. Dla mieszkańców zaplanowano miejsca postojowe na terenie osiedla oraz w garażu podziemnym, w którym również będą się znajdowały funkcjonalne komórki lokatorskie. Dodatkowo do dyspozycji mieszkańców będą stojaki oraz wiaty rowerowe. Dla mieszkańców osiedla zaplanowano tereny rekreacyjne z nowoczesnymi ławeczkami i stolikami, a dla najmłodszych atrakcyjny plac zabaw.
Rejon Rybitw podobnie jak Płaszów są objęte strategicznym planem rozwoju, który zakłada powstanie nowoczesnej, multifunkcjonalnej i zielonej dzielnicy, która będzie odpowiadała na współczesne potrzeby mieszkańców.
II etap tej inwestycji to również harmonijne połączenie architektury i natury. Liczne nasadzenia drzew, kolorowe rabaty i zielone alejki stworzą przyjazne otoczenie dla przyszłych mieszkańców. Tutaj każdy krok to krok wśród zieleni i natury. To idealne miejsce na rodzinny relaks, czytanie książek w cieniu drzew i obserwowanie ptaków. Buki to nie tylko drzewa – to symbol nowego, zielonego życia na naszym osiedlu. Tworzenie przestrzeni w duchu i w zgodzie z naturą już od dłuższego czasu jest wpisane w strategię Wawel Service.
Więcej
sygnatura: C0.2
| MieszkanieWirtualna wizytaC0.12 | 64,69 m² | 11 200 zł/m² | parter/4 | 3 | 724 528 zł |
| MieszkanieWirtualna wizyta | ||||
|
||||
| C0.12 |
- Budynek: blok mieszkalny
- Stan wykończenia: deweloperski, możliwe wykończenie "pod klucz"
- Charakterystyka mieszkania: jednopoziomowe, aneks kuchenny, 1 łazienka
- Ogrzewanie: miejskie
- Powierzchnia dodatkowa: ogródek (22,2 m²)
- Udogodnienia: winda
Zapraszamy do zapoznania się z ofertą 3-pokojowego mieszkania, składającego się z pokoju dziennego z aneksem kuchennym, dwóch sypialni, łazienki i ogródka.
Zapraszamy do zapoznania się z ofertą 3-pokojowego mieszkania, składającego się z pokoju dziennego z aneksem kuchennym, dwóch sypialni, łazienki i ogródka. Lokal znajduje się w II etapie inwestycji Enklawa Bukowa w Krakowie.
Zakup miejsca postojowego jest dobrowolny i nie jest wymagany przy nabyciu mieszkania.
✔ Naziemne: od 30 000 PLN
✔ W garażu podziemnym: w przedziale 40 000–55 000 PLN
O INWESTYCJI
Enklawa Bukowa II - miejsce do życia z potencjałem
II Etap inwestycji w Podgórzu, ul. Bukowa 65 i 69 IV kwartał 2027
Kolejny etap inwestycji Enklawa Bukowa w rejonie ulic Bukowej i Śliwiaka to projekt Wawel Service stworzony z myślą o przyszłych mieszkańcach. Zlokalizowana w dzielnicy Podgórze w rejonie Rybitwy – Północ w miejscu z ogromnym potencjałem. Właśnie tu powstaje nowoczesna i zielona dzielnica Krakowa.
Atuty inwestycji:
✔ plac zabaw, zielony teren rekreacyjny
✔ stojaki i wiaty rowerowe
✔ stanowiska naprawcze dla rowerów
✔ balkony, tarasy lub ogródki
✔ miejsca postojowe i garaż podziemny
✔ stanowiska ładowania pojazdów elektrycznych
✔ komórki lokatorskie
Lokalizacja:
✔ 7 min przystanek autobusowy Półłanki
✔ 8 min sklep spożywczy
✔ 10 – 15 min Szkoła podstawowa, przedszkole
✔ 7 min Przystań Brzegi
✔ 11 min centrum sportowe i fitness
✔ 18 min plaża i Zalew Bagry
✔ 4 min parking P&R Mały Płaszów
✔ 8 min Stacja Kolejowa Bieżanów
✔ 6 – 12 min sklepy Lidl, Biedronka, CH M1
Enklawa Bukowa II — nowocześnie, praktycznie, w zgodzie z naturą
Inwestycja Enklawa Bukowa, jako cała inwestycja, tworzy spójną przestrzeń z otaczającymi ją terenami zielonymi, które zapewnią przyszłym mieszkańcom aktywne spędzenie czasu. Nowoczesne formy architektoniczne oraz ponadczasowe połączenie bieli i antracytu nadadzą atrakcyjny i modernistyczny charakter inwestycji. Całości dopełnią starannie zaplanowane nasadzenia traw, krzewów, drzew, przede wszystkim buków.
Szczegóły inwestycji
✔ 2 budynki: jeden pięciokondygnacyjny, drugi sześciokondygnacyjny,
✔ łącznie 189 lokali mieszkalnych
✔ mieszkania 1, 2, 3 lub 4 pokojowe
✔ metraże od 32,93 m² do 92,98 m²
✔ teren monitorowany
✔ planowy termin odbioru IV kwartał 2027 r.
Dwa budynki w tym etapie zostały również zaprojektowane w sposób, aby zapewnić mieszkańcom nie tylko wygodne i praktyczne w życiu codziennym przestrzenie, ale także uzyskać przyjemne wrażenia estetyczne. Mieszkania posiadać będą balkony, w budynku C na najwyższej kondygnacji również tarasy, a do lokali parterowych przynależeć będą zielone, zaciszne ogródki. Dla mieszkańców zaplanowano miejsca postojowe na terenie osiedla oraz w garażu podziemnym, w którym również będą się znajdowały funkcjonalne komórki lokatorskie. Dodatkowo do dyspozycji mieszkańców będą stojaki oraz wiaty rowerowe. Dla mieszkańców osiedla zaplanowano tereny rekreacyjne z nowoczesnymi ławeczkami i stolikami, a dla najmłodszych atrakcyjny plac zabaw.
Rejon Rybitw podobnie jak Płaszów są objęte strategicznym planem rozwoju, który zakłada powstanie nowoczesnej, multifunkcjonalnej i zielonej dzielnicy, która będzie odpowiadała na współczesne potrzeby mieszkańców.
II etap tej inwestycji to również harmonijne połączenie architektury i natury. Liczne nasadzenia drzew, kolorowe rabaty i zielone alejki stworzą przyjazne otoczenie dla przyszłych mieszkańców. Tutaj każdy krok to krok wśród zieleni i natury. To idealne miejsce na rodzinny relaks, czytanie książek w cieniu drzew i obserwowanie ptaków. Buki to nie tylko drzewa – to symbol nowego, zielonego życia na naszym osiedlu. Tworzenie przestrzeni w duchu i w zgodzie z naturą już od dłuższego czasu jest wpisane w strategię Wawel Service.
Więcej
sygnatura: C0.12
| MieszkanieWirtualna wizytaC0.10 | 72,79 m² | 12 500 zł/m² | parter/4 | 3 | 909 875 zł |
| MieszkanieWirtualna wizyta | ||||
|
||||
| C0.10 |
- Budynek: blok mieszkalny
- Stan wykończenia: deweloperski, możliwe wykończenie "pod klucz"
- Charakterystyka mieszkania: jednopoziomowe, aneks kuchenny, 1 łazienka
- Ogrzewanie: miejskie
- Powierzchnia dodatkowa: ogródek (34,5 m²)
- Udogodnienia: winda
Zapraszamy do zapoznania się z ofertą 3-pokojowego mieszkania, składającego się z pokoju dziennego z aneksem kuchennym, dwóch sypialni, łazienki, WC i ogródka.
Zapraszamy do zapoznania się z ofertą 3-pokojowego mieszkania, składającego się z pokoju dziennego z aneksem kuchennym, dwóch sypialni, łazienki, WC i ogródka. Lokal znajduje się w II etapie inwestycji Enklawa Bukowa w Krakowie.
Zakup miejsca postojowego jest dobrowolny i nie jest wymagany przy nabyciu mieszkania.
✔ Naziemne: od 30 000 PLN
✔ W garażu podziemnym: w przedziale 40 000–55 000 PLN
O INWESTYCJI
Enklawa Bukowa II - miejsce do życia z potencjałem
II Etap inwestycji w Podgórzu, ul. Bukowa 65 i 69 IV kwartał 2027
Kolejny etap inwestycji Enklawa Bukowa w rejonie ulic Bukowej i Śliwiaka to projekt Wawel Service stworzony z myślą o przyszłych mieszkańcach. Zlokalizowana w dzielnicy Podgórze w rejonie Rybitwy – Północ w miejscu z ogromnym potencjałem. Właśnie tu powstaje nowoczesna i zielona dzielnica Krakowa.
Atuty inwestycji:
✔ plac zabaw, zielony teren rekreacyjny
✔ stojaki i wiaty rowerowe
✔ stanowiska naprawcze dla rowerów
✔ balkony, tarasy lub ogródki
✔ miejsca postojowe i garaż podziemny
✔ stanowiska ładowania pojazdów elektrycznych
✔ komórki lokatorskie
Lokalizacja:
✔ 7 min przystanek autobusowy Półłanki
✔ 8 min sklep spożywczy
✔ 10 – 15 min Szkoła podstawowa, przedszkole
✔ 7 min Przystań Brzegi
✔ 11 min centrum sportowe i fitness
✔ 18 min plaża i Zalew Bagry
✔ 4 min parking P&R Mały Płaszów
✔ 8 min Stacja Kolejowa Bieżanów
✔ 6 – 12 min sklepy Lidl, Biedronka, CH M1
Enklawa Bukowa II — nowocześnie, praktycznie, w zgodzie z naturą
Inwestycja Enklawa Bukowa, jako cała inwestycja, tworzy spójną przestrzeń z otaczającymi ją terenami zielonymi, które zapewnią przyszłym mieszkańcom aktywne spędzenie czasu. Nowoczesne formy architektoniczne oraz ponadczasowe połączenie bieli i antracytu nadadzą atrakcyjny i modernistyczny charakter inwestycji. Całości dopełnią starannie zaplanowane nasadzenia traw, krzewów, drzew, przede wszystkim buków.
Szczegóły inwestycji
✔ 2 budynki: jeden pięciokondygnacyjny, drugi sześciokondygnacyjny,
✔ łącznie 189 lokali mieszkalnych
✔ mieszkania 1, 2, 3 lub 4 pokojowe
✔ metraże od 32,93 m² do 92,98 m²
✔ teren monitorowany
✔ planowy termin odbioru IV kwartał 2027 r.
Dwa budynki w tym etapie zostały również zaprojektowane w sposób, aby zapewnić mieszkańcom nie tylko wygodne i praktyczne w życiu codziennym przestrzenie, ale także uzyskać przyjemne wrażenia estetyczne. Mieszkania posiadać będą balkony, w budynku C na najwyższej kondygnacji również tarasy, a do lokali parterowych przynależeć będą zielone, zaciszne ogródki. Dla mieszkańców zaplanowano miejsca postojowe na terenie osiedla oraz w garażu podziemnym, w którym również będą się znajdowały funkcjonalne komórki lokatorskie. Dodatkowo do dyspozycji mieszkańców będą stojaki oraz wiaty rowerowe. Dla mieszkańców osiedla zaplanowano tereny rekreacyjne z nowoczesnymi ławeczkami i stolikami, a dla najmłodszych atrakcyjny plac zabaw.
Rejon Rybitw podobnie jak Płaszów są objęte strategicznym planem rozwoju, który zakłada powstanie nowoczesnej, multifunkcjonalnej i zielonej dzielnicy, która będzie odpowiadała na współczesne potrzeby mieszkańców.
II etap tej inwestycji to również harmonijne połączenie architektury i natury. Liczne nasadzenia drzew, kolorowe rabaty i zielone alejki stworzą przyjazne otoczenie dla przyszłych mieszkańców. Tutaj każdy krok to krok wśród zieleni i natury. To idealne miejsce na rodzinny relaks, czytanie książek w cieniu drzew i obserwowanie ptaków. Buki to nie tylko drzewa – to symbol nowego, zielonego życia na naszym osiedlu. Tworzenie przestrzeni w duchu i w zgodzie z naturą już od dłuższego czasu jest wpisane w strategię Wawel Service.
Więcej
sygnatura: C0.10
| MieszkanieWirtualna wizytaC0.3 | 42,74 m² | 12 600 zł/m² | parter/5 | 2 | 538 524 zł |
| MieszkanieWirtualna wizyta | ||||
|
||||
| C0.3 |
- Budynek: blok mieszkalny
- Stan wykończenia: deweloperski, możliwe wykończenie "pod klucz"
- Charakterystyka mieszkania: jednopoziomowe, aneks kuchenny, 1 łazienka
- Ogrzewanie: miejskie
- Powierzchnia dodatkowa: ogródek (9 m²)
- Udogodnienia: winda
Zapraszamy do zapoznania się z ofertą 2-pokojowego mieszkania, składającego się z pokoju dziennego z aneksem kuchennym, sypialni, łazienki i ogródka.
Zapraszamy do zapoznania się z ofertą 2-pokojowego mieszkania, składającego się z pokoju dziennego z aneksem kuchennym, sypialni, łazienki i ogródka. Lokal znajduje się w II etapie inwestycji Enklawa Bukowa w Krakowie.
Zakup miejsca postojowego jest dobrowolny i nie jest wymagany przy nabyciu mieszkania.
✔ Naziemne: od 30 000 PLN
✔ W garażu podziemnym: w przedziale 40 000–55 000 PLN
O INWESTYCJI
Enklawa Bukowa II - miejsce do życia z potencjałem
II Etap inwestycji w Podgórzu, ul. Bukowa 65 i 69 IV kwartał 2027
Kolejny etap inwestycji Enklawa Bukowa w rejonie ulic Bukowej i Śliwiaka to projekt Wawel Service stworzony z myślą o przyszłych mieszkańcach. Zlokalizowana w dzielnicy Podgórze w rejonie Rybitwy – Północ w miejscu z ogromnym potencjałem. Właśnie tu powstaje nowoczesna i zielona dzielnica Krakowa.
Atuty inwestycji:
✔ plac zabaw, zielony teren rekreacyjny
✔ stojaki i wiaty rowerowe
✔ stanowiska naprawcze dla rowerów
✔ balkony, tarasy lub ogródki
✔ miejsca postojowe i garaż podziemny
✔ stanowiska ładowania pojazdów elektrycznych
✔ komórki lokatorskie
Lokalizacja:
✔ 7 min przystanek autobusowy Półłanki
✔ 8 min sklep spożywczy
✔ 10 – 15 min Szkoła podstawowa, przedszkole
✔ 7 min Przystań Brzegi
✔ 11 min centrum sportowe i fitness
✔ 18 min plaża i Zalew Bagry
✔ 4 min parking P&R Mały Płaszów
✔ 8 min Stacja Kolejowa Bieżanów
✔ 6 – 12 min sklepy Lidl, Biedronka, CH M1
Enklawa Bukowa II — nowocześnie, praktycznie, w zgodzie z naturą
Inwestycja Enklawa Bukowa, jako cała inwestycja, tworzy spójną przestrzeń z otaczającymi ją terenami zielonymi, które zapewnią przyszłym mieszkańcom aktywne spędzenie czasu. Nowoczesne formy architektoniczne oraz ponadczasowe połączenie bieli i antracytu nadadzą atrakcyjny i modernistyczny charakter inwestycji. Całości dopełnią starannie zaplanowane nasadzenia traw, krzewów, drzew, przede wszystkim buków.
Szczegóły inwestycji
✔ 2 budynki: jeden pięciokondygnacyjny, drugi sześciokondygnacyjny,
✔ łącznie 189 lokali mieszkalnych
✔ mieszkania 1, 2, 3 lub 4 pokojowe
✔ metraże od 32,93 m² do 92,98 m²
✔ teren monitorowany
✔ planowy termin odbioru IV kwartał 2027 r.
Dwa budynki w tym etapie zostały również zaprojektowane w sposób, aby zapewnić mieszkańcom nie tylko wygodne i praktyczne w życiu codziennym przestrzenie, ale także uzyskać przyjemne wrażenia estetyczne. Mieszkania posiadać będą balkony, w budynku C na najwyższej kondygnacji również tarasy, a do lokali parterowych przynależeć będą zielone, zaciszne ogródki. Dla mieszkańców zaplanowano miejsca postojowe na terenie osiedla oraz w garażu podziemnym, w którym również będą się znajdowały funkcjonalne komórki lokatorskie. Dodatkowo do dyspozycji mieszkańców będą stojaki oraz wiaty rowerowe. Dla mieszkańców osiedla zaplanowano tereny rekreacyjne z nowoczesnymi ławeczkami i stolikami, a dla najmłodszych atrakcyjny plac zabaw.
Rejon Rybitw podobnie jak Płaszów są objęte strategicznym planem rozwoju, który zakłada powstanie nowoczesnej, multifunkcjonalnej i zielonej dzielnicy, która będzie odpowiadała na współczesne potrzeby mieszkańców.
II etap tej inwestycji to również harmonijne połączenie architektury i natury. Liczne nasadzenia drzew, kolorowe rabaty i zielone alejki stworzą przyjazne otoczenie dla przyszłych mieszkańców. Tutaj każdy krok to krok wśród zieleni i natury. To idealne miejsce na rodzinny relaks, czytanie książek w cieniu drzew i obserwowanie ptaków. Buki to nie tylko drzewa – to symbol nowego, zielonego życia na naszym osiedlu. Tworzenie przestrzeni w duchu i w zgodzie z naturą już od dłuższego czasu jest wpisane w strategię Wawel Service.
Więcej
sygnatura: C0.3
| MieszkanieWirtualna wizytaC0.4 | 66,53 m² | 11 800 zł/m² | parter/4 | 3 | 785 054 zł |
| MieszkanieWirtualna wizyta | ||||
|
||||
| C0.4 |
- Budynek: blok mieszkalny
- Stan wykończenia: deweloperski, możliwe wykończenie "pod klucz"
- Charakterystyka mieszkania: jednopoziomowe, aneks kuchenny, 1 łazienka
- Ogrzewanie: miejskie
- Powierzchnia dodatkowa: ogródek (19,3 m²)
- Udogodnienia: winda
Zapraszamy do zapoznania się z ofertą 3-pokojowego mieszkania, składającego się z pokoju dziennego z aneksem kuchennym, dwóch sypialni, łazienki, WC i ogródka.
Zapraszamy do zapoznania się z ofertą 3-pokojowego mieszkania, składającego się z pokoju dziennego z aneksem kuchennym, dwóch sypialni, łazienki, WC i ogródka. Lokal znajduje się w II etapie inwestycji Enklawa Bukowa w Krakowie.
Zakup miejsca postojowego jest dobrowolny i nie jest wymagany przy nabyciu mieszkania.
✔ Naziemne: od 30 000 PLN
✔ W garażu podziemnym: w przedziale 40 000–55 000 PLN
O INWESTYCJI
Enklawa Bukowa II - miejsce do życia z potencjałem
II Etap inwestycji w Podgórzu, ul. Bukowa 65 i 69 IV kwartał 2027
Kolejny etap inwestycji Enklawa Bukowa w rejonie ulic Bukowej i Śliwiaka to projekt Wawel Service stworzony z myślą o przyszłych mieszkańcach. Zlokalizowana w dzielnicy Podgórze w rejonie Rybitwy – Północ w miejscu z ogromnym potencjałem. Właśnie tu powstaje nowoczesna i zielona dzielnica Krakowa.
Atuty inwestycji:
✔ plac zabaw, zielony teren rekreacyjny
✔ stojaki i wiaty rowerowe
✔ stanowiska naprawcze dla rowerów
✔ balkony, tarasy lub ogródki
✔ miejsca postojowe i garaż podziemny
✔ stanowiska ładowania pojazdów elektrycznych
✔ komórki lokatorskie
Lokalizacja:
✔ 7 min przystanek autobusowy Półłanki
✔ 8 min sklep spożywczy
✔ 10 – 15 min Szkoła podstawowa, przedszkole
✔ 7 min Przystań Brzegi
✔ 11 min centrum sportowe i fitness
✔ 18 min plaża i Zalew Bagry
✔ 4 min parking P&R Mały Płaszów
✔ 8 min Stacja Kolejowa Bieżanów
✔ 6 – 12 min sklepy Lidl, Biedronka, CH M1
Enklawa Bukowa II — nowocześnie, praktycznie, w zgodzie z naturą
Inwestycja Enklawa Bukowa, jako cała inwestycja, tworzy spójną przestrzeń z otaczającymi ją terenami zielonymi, które zapewnią przyszłym mieszkańcom aktywne spędzenie czasu. Nowoczesne formy architektoniczne oraz ponadczasowe połączenie bieli i antracytu nadadzą atrakcyjny i modernistyczny charakter inwestycji. Całości dopełnią starannie zaplanowane nasadzenia traw, krzewów, drzew, przede wszystkim buków.
Szczegóły inwestycji
✔ 2 budynki: jeden pięciokondygnacyjny, drugi sześciokondygnacyjny,
✔ łącznie 189 lokali mieszkalnych
✔ mieszkania 1, 2, 3 lub 4 pokojowe
✔ metraże od 32,93 m² do 92,98 m²
✔ teren monitorowany
✔ planowy termin odbioru IV kwartał 2027 r.
Dwa budynki w tym etapie zostały również zaprojektowane w sposób, aby zapewnić mieszkańcom nie tylko wygodne i praktyczne w życiu codziennym przestrzenie, ale także uzyskać przyjemne wrażenia estetyczne. Mieszkania posiadać będą balkony, w budynku C na najwyższej kondygnacji również tarasy, a do lokali parterowych przynależeć będą zielone, zaciszne ogródki. Dla mieszkańców zaplanowano miejsca postojowe na terenie osiedla oraz w garażu podziemnym, w którym również będą się znajdowały funkcjonalne komórki lokatorskie. Dodatkowo do dyspozycji mieszkańców będą stojaki oraz wiaty rowerowe. Dla mieszkańców osiedla zaplanowano tereny rekreacyjne z nowoczesnymi ławeczkami i stolikami, a dla najmłodszych atrakcyjny plac zabaw.
Rejon Rybitw podobnie jak Płaszów są objęte strategicznym planem rozwoju, który zakłada powstanie nowoczesnej, multifunkcjonalnej i zielonej dzielnicy, która będzie odpowiadała na współczesne potrzeby mieszkańców.
II etap tej inwestycji to również harmonijne połączenie architektury i natury. Liczne nasadzenia drzew, kolorowe rabaty i zielone alejki stworzą przyjazne otoczenie dla przyszłych mieszkańców. Tutaj każdy krok to krok wśród zieleni i natury. To idealne miejsce na rodzinny relaks, czytanie książek w cieniu drzew i obserwowanie ptaków. Buki to nie tylko drzewa – to symbol nowego, zielonego życia na naszym osiedlu. Tworzenie przestrzeni w duchu i w zgodzie z naturą już od dłuższego czasu jest wpisane w strategię Wawel Service.
Więcej
sygnatura: C0.4
| MieszkanieWirtualna wizytaC0.5 | 66,53 m² | 11 800 zł/m² | parter/4 | 3 | 785 054 zł |
| MieszkanieWirtualna wizyta | ||||
|
||||
| C0.5 |
- Budynek: blok mieszkalny
- Stan wykończenia: deweloperski, możliwe wykończenie "pod klucz"
- Charakterystyka mieszkania: jednopoziomowe, aneks kuchenny, 1 łazienka
- Ogrzewanie: miejskie
- Powierzchnia dodatkowa: ogródek (17,8 m²)
- Udogodnienia: winda
Zapraszamy do zapoznania się z ofertą 3-pokojowego mieszkania, składającego się z pokoju dziennego z aneksem kuchennym, dwóch sypialni, łazienki, WC i ogródka.
Zapraszamy do zapoznania się z ofertą 3-pokojowego mieszkania, składającego się z pokoju dziennego z aneksem kuchennym, dwóch sypialni, łazienki, WC i ogródka. Lokal znajduje się w II etapie inwestycji Enklawa Bukowa w Krakowie.
Zakup miejsca postojowego jest dobrowolny i nie jest wymagany przy nabyciu mieszkania.
✔ Naziemne: od 30 000 PLN
✔ W garażu podziemnym: w przedziale 40 000–55 000 PLN
O INWESTYCJI
Enklawa Bukowa II - miejsce do życia z potencjałem
II Etap inwestycji w Podgórzu, ul. Bukowa 65 i 69 IV kwartał 2027
Kolejny etap inwestycji Enklawa Bukowa w rejonie ulic Bukowej i Śliwiaka to projekt Wawel Service stworzony z myślą o przyszłych mieszkańcach. Zlokalizowana w dzielnicy Podgórze w rejonie Rybitwy – Północ w miejscu z ogromnym potencjałem. Właśnie tu powstaje nowoczesna i zielona dzielnica Krakowa.
Atuty inwestycji:
✔ plac zabaw, zielony teren rekreacyjny
✔ stojaki i wiaty rowerowe
✔ stanowiska naprawcze dla rowerów
✔ balkony, tarasy lub ogródki
✔ miejsca postojowe i garaż podziemny
✔ stanowiska ładowania pojazdów elektrycznych
✔ komórki lokatorskie
Lokalizacja:
✔ 7 min przystanek autobusowy Półłanki
✔ 8 min sklep spożywczy
✔ 10 – 15 min Szkoła podstawowa, przedszkole
✔ 7 min Przystań Brzegi
✔ 11 min centrum sportowe i fitness
✔ 18 min plaża i Zalew Bagry
✔ 4 min parking P&R Mały Płaszów
✔ 8 min Stacja Kolejowa Bieżanów
✔ 6 – 12 min sklepy Lidl, Biedronka, CH M1
Enklawa Bukowa II — nowocześnie, praktycznie, w zgodzie z naturą
Inwestycja Enklawa Bukowa, jako cała inwestycja, tworzy spójną przestrzeń z otaczającymi ją terenami zielonymi, które zapewnią przyszłym mieszkańcom aktywne spędzenie czasu. Nowoczesne formy architektoniczne oraz ponadczasowe połączenie bieli i antracytu nadadzą atrakcyjny i modernistyczny charakter inwestycji. Całości dopełnią starannie zaplanowane nasadzenia traw, krzewów, drzew, przede wszystkim buków.
Szczegóły inwestycji
✔ 2 budynki: jeden pięciokondygnacyjny, drugi sześciokondygnacyjny,
✔ łącznie 189 lokali mieszkalnych
✔ mieszkania 1, 2, 3 lub 4 pokojowe
✔ metraże od 32,93 m² do 92,98 m²
✔ teren monitorowany
✔ planowy termin odbioru IV kwartał 2027 r.
Dwa budynki w tym etapie zostały również zaprojektowane w sposób, aby zapewnić mieszkańcom nie tylko wygodne i praktyczne w życiu codziennym przestrzenie, ale także uzyskać przyjemne wrażenia estetyczne. Mieszkania posiadać będą balkony, w budynku C na najwyższej kondygnacji również tarasy, a do lokali parterowych przynależeć będą zielone, zaciszne ogródki. Dla mieszkańców zaplanowano miejsca postojowe na terenie osiedla oraz w garażu podziemnym, w którym również będą się znajdowały funkcjonalne komórki lokatorskie. Dodatkowo do dyspozycji mieszkańców będą stojaki oraz wiaty rowerowe. Dla mieszkańców osiedla zaplanowano tereny rekreacyjne z nowoczesnymi ławeczkami i stolikami, a dla najmłodszych atrakcyjny plac zabaw.
Rejon Rybitw podobnie jak Płaszów są objęte strategicznym planem rozwoju, który zakłada powstanie nowoczesnej, multifunkcjonalnej i zielonej dzielnicy, która będzie odpowiadała na współczesne potrzeby mieszkańców.
II etap tej inwestycji to również harmonijne połączenie architektury i natury. Liczne nasadzenia drzew, kolorowe rabaty i zielone alejki stworzą przyjazne otoczenie dla przyszłych mieszkańców. Tutaj każdy krok to krok wśród zieleni i natury. To idealne miejsce na rodzinny relaks, czytanie książek w cieniu drzew i obserwowanie ptaków. Buki to nie tylko drzewa – to symbol nowego, zielonego życia na naszym osiedlu. Tworzenie przestrzeni w duchu i w zgodzie z naturą już od dłuższego czasu jest wpisane w strategię Wawel Service.
Więcej
sygnatura: C0.5
| MieszkanieWirtualna wizytaC0.6 | 42,74 m² | 12 600 zł/m² | parter/5 | 2 | 538 524 zł |
| MieszkanieWirtualna wizyta | ||||
|
||||
| C0.6 |
- Budynek: blok mieszkalny
- Stan wykończenia: deweloperski, możliwe wykończenie "pod klucz"
- Charakterystyka mieszkania: jednopoziomowe, aneks kuchenny, 1 łazienka
- Ogrzewanie: miejskie
- Powierzchnia dodatkowa: ogródek (9 m²)
- Udogodnienia: winda
Zapraszamy do zapoznania się z ofertą 2-pokojowego mieszkania, składającego się z pokoju dziennego z aneksem kuchennym, sypialni, łazienki i ogródka.
Zapraszamy do zapoznania się z ofertą 2-pokojowego mieszkania, składającego się z pokoju dziennego z aneksem kuchennym, sypialni, łazienki i ogródka. Lokal znajduje się w II etapie inwestycji Enklawa Bukowa w Krakowie.
Zakup miejsca postojowego jest dobrowolny i nie jest wymagany przy nabyciu mieszkania.
✔ Naziemne: od 30 000 PLN
✔ W garażu podziemnym: w przedziale 40 000–55 000 PLN
O INWESTYCJI
Enklawa Bukowa II - miejsce do życia z potencjałem
II Etap inwestycji w Podgórzu, ul. Bukowa 65 i 69 IV kwartał 2027
Kolejny etap inwestycji Enklawa Bukowa w rejonie ulic Bukowej i Śliwiaka to projekt Wawel Service stworzony z myślą o przyszłych mieszkańcach. Zlokalizowana w dzielnicy Podgórze w rejonie Rybitwy – Północ w miejscu z ogromnym potencjałem. Właśnie tu powstaje nowoczesna i zielona dzielnica Krakowa.
Atuty inwestycji:
✔ plac zabaw, zielony teren rekreacyjny
✔ stojaki i wiaty rowerowe
✔ stanowiska naprawcze dla rowerów
✔ balkony, tarasy lub ogródki
✔ miejsca postojowe i garaż podziemny
✔ stanowiska ładowania pojazdów elektrycznych
✔ komórki lokatorskie
Lokalizacja:
✔ 7 min przystanek autobusowy Półłanki
✔ 8 min sklep spożywczy
✔ 10 – 15 min Szkoła podstawowa, przedszkole
✔ 7 min Przystań Brzegi
✔ 11 min centrum sportowe i fitness
✔ 18 min plaża i Zalew Bagry
✔ 4 min parking P&R Mały Płaszów
✔ 8 min Stacja Kolejowa Bieżanów
✔ 6 – 12 min sklepy Lidl, Biedronka, CH M1
Enklawa Bukowa II — nowocześnie, praktycznie, w zgodzie z naturą
Inwestycja Enklawa Bukowa, jako cała inwestycja, tworzy spójną przestrzeń z otaczającymi ją terenami zielonymi, które zapewnią przyszłym mieszkańcom aktywne spędzenie czasu. Nowoczesne formy architektoniczne oraz ponadczasowe połączenie bieli i antracytu nadadzą atrakcyjny i modernistyczny charakter inwestycji. Całości dopełnią starannie zaplanowane nasadzenia traw, krzewów, drzew, przede wszystkim buków.
Szczegóły inwestycji
✔ 2 budynki: jeden pięciokondygnacyjny, drugi sześciokondygnacyjny,
✔ łącznie 189 lokali mieszkalnych
✔ mieszkania 1, 2, 3 lub 4 pokojowe
✔ metraże od 32,93 m² do 92,98 m²
✔ teren monitorowany
✔ planowy termin odbioru IV kwartał 2027 r.
Dwa budynki w tym etapie zostały również zaprojektowane w sposób, aby zapewnić mieszkańcom nie tylko wygodne i praktyczne w życiu codziennym przestrzenie, ale także uzyskać przyjemne wrażenia estetyczne. Mieszkania posiadać będą balkony, w budynku C na najwyższej kondygnacji również tarasy, a do lokali parterowych przynależeć będą zielone, zaciszne ogródki. Dla mieszkańców zaplanowano miejsca postojowe na terenie osiedla oraz w garażu podziemnym, w którym również będą się znajdowały funkcjonalne komórki lokatorskie. Dodatkowo do dyspozycji mieszkańców będą stojaki oraz wiaty rowerowe. Dla mieszkańców osiedla zaplanowano tereny rekreacyjne z nowoczesnymi ławeczkami i stolikami, a dla najmłodszych atrakcyjny plac zabaw.
Rejon Rybitw podobnie jak Płaszów są objęte strategicznym planem rozwoju, który zakłada powstanie nowoczesnej, multifunkcjonalnej i zielonej dzielnicy, która będzie odpowiadała na współczesne potrzeby mieszkańców.
II etap tej inwestycji to również harmonijne połączenie architektury i natury. Liczne nasadzenia drzew, kolorowe rabaty i zielone alejki stworzą przyjazne otoczenie dla przyszłych mieszkańców. Tutaj każdy krok to krok wśród zieleni i natury. To idealne miejsce na rodzinny relaks, czytanie książek w cieniu drzew i obserwowanie ptaków. Buki to nie tylko drzewa – to symbol nowego, zielonego życia na naszym osiedlu. Tworzenie przestrzeni w duchu i w zgodzie z naturą już od dłuższego czasu jest wpisane w strategię Wawel Service.
Więcej
sygnatura: C0.6
| MieszkanieWirtualna wizytaC0.7 | 42,74 m² | 12 600 zł/m² | parter/5 | 2 | 538 524 zł |
| MieszkanieWirtualna wizyta | ||||
|
||||
| C0.7 |
- Budynek: blok mieszkalny
- Stan wykończenia: deweloperski, możliwe wykończenie "pod klucz"
- Charakterystyka mieszkania: jednopoziomowe, aneks kuchenny, 1 łazienka
- Ogrzewanie: miejskie
- Powierzchnia dodatkowa: ogródek (9 m²)
- Udogodnienia: winda
Zapraszamy do zapoznania się z ofertą 2-pokojowego mieszkania, składającego się z pokoju dziennego z aneksem kuchennym, sypialni, łazienki i ogródka.
Zapraszamy do zapoznania się z ofertą 2-pokojowego mieszkania, składającego się z pokoju dziennego z aneksem kuchennym, sypialni, łazienki i ogródka. Lokal znajduje się w II etapie inwestycji Enklawa Bukowa w Krakowie.
Zakup miejsca postojowego jest dobrowolny i nie jest wymagany przy nabyciu mieszkania.
✔ Naziemne: od 30 000 PLN
✔ W garażu podziemnym: w przedziale 40 000–55 000 PLN
O INWESTYCJI
Enklawa Bukowa II - miejsce do życia z potencjałem
II Etap inwestycji w Podgórzu, ul. Bukowa 65 i 69 IV kwartał 2027
Kolejny etap inwestycji Enklawa Bukowa w rejonie ulic Bukowej i Śliwiaka to projekt Wawel Service stworzony z myślą o przyszłych mieszkańcach. Zlokalizowana w dzielnicy Podgórze w rejonie Rybitwy – Północ w miejscu z ogromnym potencjałem. Właśnie tu powstaje nowoczesna i zielona dzielnica Krakowa.
Atuty inwestycji:
✔ plac zabaw, zielony teren rekreacyjny
✔ stojaki i wiaty rowerowe
✔ stanowiska naprawcze dla rowerów
✔ balkony, tarasy lub ogródki
✔ miejsca postojowe i garaż podziemny
✔ stanowiska ładowania pojazdów elektrycznych
✔ komórki lokatorskie
Lokalizacja:
✔ 7 min przystanek autobusowy Półłanki
✔ 8 min sklep spożywczy
✔ 10 – 15 min Szkoła podstawowa, przedszkole
✔ 7 min Przystań Brzegi
✔ 11 min centrum sportowe i fitness
✔ 18 min plaża i Zalew Bagry
✔ 4 min parking P&R Mały Płaszów
✔ 8 min Stacja Kolejowa Bieżanów
✔ 6 – 12 min sklepy Lidl, Biedronka, CH M1
Enklawa Bukowa II — nowocześnie, praktycznie, w zgodzie z naturą
Inwestycja Enklawa Bukowa, jako cała inwestycja, tworzy spójną przestrzeń z otaczającymi ją terenami zielonymi, które zapewnią przyszłym mieszkańcom aktywne spędzenie czasu. Nowoczesne formy architektoniczne oraz ponadczasowe połączenie bieli i antracytu nadadzą atrakcyjny i modernistyczny charakter inwestycji. Całości dopełnią starannie zaplanowane nasadzenia traw, krzewów, drzew, przede wszystkim buków.
Szczegóły inwestycji
✔ 2 budynki: jeden pięciokondygnacyjny, drugi sześciokondygnacyjny,
✔ łącznie 189 lokali mieszkalnych
✔ mieszkania 1, 2, 3 lub 4 pokojowe
✔ metraże od 32,93 m² do 92,98 m²
✔ teren monitorowany
✔ planowy termin odbioru IV kwartał 2027 r.
Dwa budynki w tym etapie zostały również zaprojektowane w sposób, aby zapewnić mieszkańcom nie tylko wygodne i praktyczne w życiu codziennym przestrzenie, ale także uzyskać przyjemne wrażenia estetyczne. Mieszkania posiadać będą balkony, w budynku C na najwyższej kondygnacji również tarasy, a do lokali parterowych przynależeć będą zielone, zaciszne ogródki. Dla mieszkańców zaplanowano miejsca postojowe na terenie osiedla oraz w garażu podziemnym, w którym również będą się znajdowały funkcjonalne komórki lokatorskie. Dodatkowo do dyspozycji mieszkańców będą stojaki oraz wiaty rowerowe. Dla mieszkańców osiedla zaplanowano tereny rekreacyjne z nowoczesnymi ławeczkami i stolikami, a dla najmłodszych atrakcyjny plac zabaw.
Rejon Rybitw podobnie jak Płaszów są objęte strategicznym planem rozwoju, który zakłada powstanie nowoczesnej, multifunkcjonalnej i zielonej dzielnicy, która będzie odpowiadała na współczesne potrzeby mieszkańców.
II etap tej inwestycji to również harmonijne połączenie architektury i natury. Liczne nasadzenia drzew, kolorowe rabaty i zielone alejki stworzą przyjazne otoczenie dla przyszłych mieszkańców. Tutaj każdy krok to krok wśród zieleni i natury. To idealne miejsce na rodzinny relaks, czytanie książek w cieniu drzew i obserwowanie ptaków. Buki to nie tylko drzewa – to symbol nowego, zielonego życia na naszym osiedlu. Tworzenie przestrzeni w duchu i w zgodzie z naturą już od dłuższego czasu jest wpisane w strategię Wawel Service.
Więcej
sygnatura: C0.7
WięcejPokaż pozostałe
Zobacz pozostałe ogłoszenia inwestycji Enklawa Bukowa II

Wirtualna wizyta
705 888 zł
65,36 m²
10 800 zł/m²
parter/5
3

Wirtualna wizyta
608 125 zł
48,65 m²
12 500 zł/m²
2/5
2

Wirtualna wizyta
538 524 zł
42,74 m²
12 600 zł/m²
parter/5
2

Wirtualna wizyta
724 528 zł
64,69 m²
11 200 zł/m²
parter/4
3

Wirtualna wizyta
909 875 zł
72,79 m²
12 500 zł/m²
parter/4
3

Wirtualna wizyta
538 524 zł
42,74 m²
12 600 zł/m²
parter/5
2

Wirtualna wizyta
785 054 zł
66,53 m²
11 800 zł/m²
parter/4
3

Wirtualna wizyta
785 054 zł
66,53 m²
11 800 zł/m²
parter/4
3

Wirtualna wizyta
538 524 zł
42,74 m²
12 600 zł/m²
parter/5
2

Wirtualna wizyta
538 524 zł
42,74 m²
12 600 zł/m²
parter/5
2
Więcej
Biuro sprzedaży
799 392...
799 392 951
Wysyłanie wiadomości
Wiadomość została
wysłana
wyślij kolejną wiadomość
Udostępnij
Kontakt
Biuro sprzedaży
799 392...
799 392 951
Z góry dziękujemy za powołanie się na Nieruchomosci-online.pl
Wysyłanie wiadomości
Wiadomość została
wysłana
wyślij kolejną wiadomość
Kontakt
Biuro sprzedaży
Zostaw telefon, oddzwonimy
Wysyłanie wiadomości
Wiadomość została
wysłana
wyślij kolejną wiadomość
Wysyłanie wiadomości
Wiadomość została
wysłana
wyślij kolejną wiadomość
Zgłoś błąd lub naruszenie


